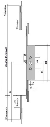
Crémone à Têtière F17 ajustable en partie haute et basse

RETOUR