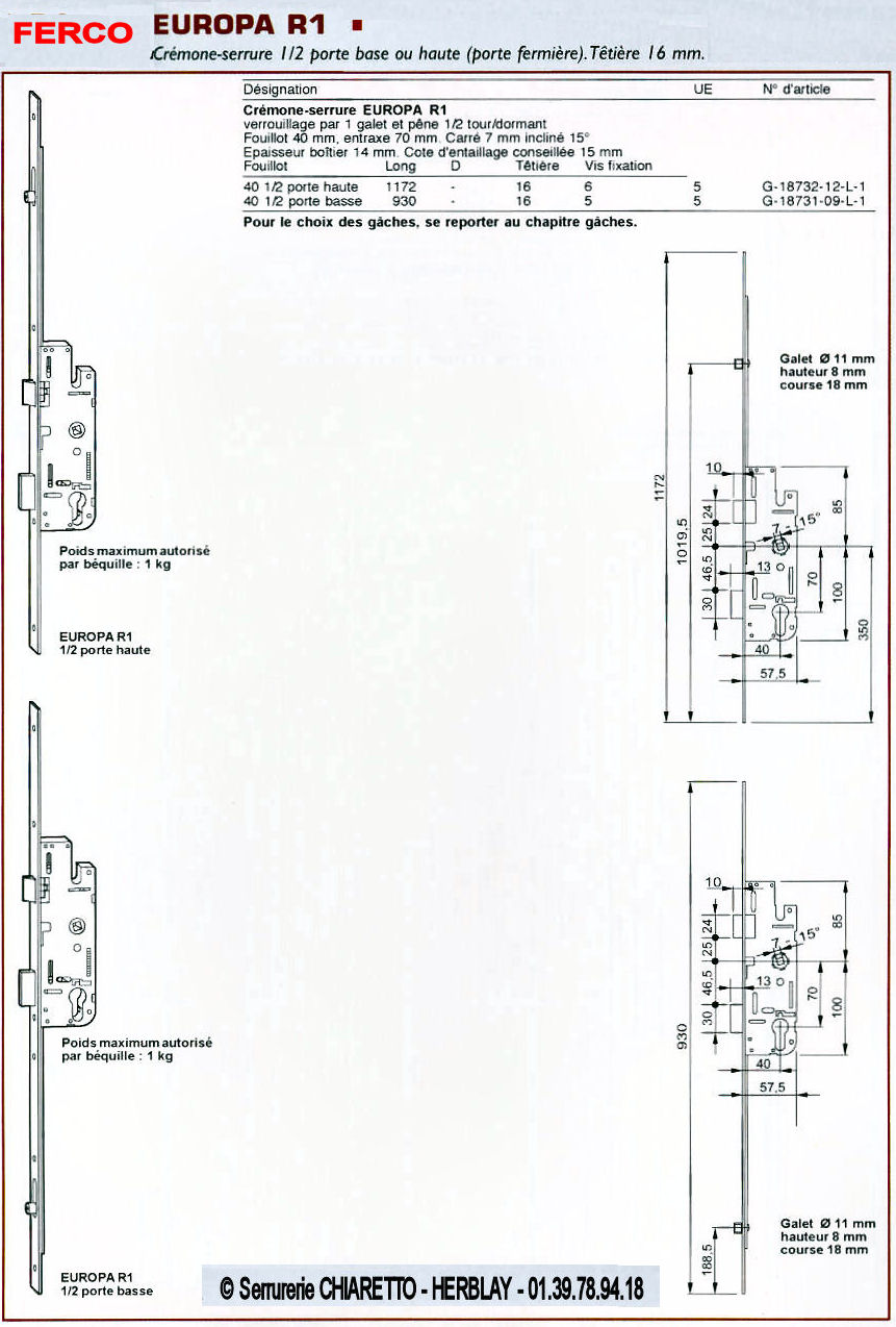
EUROPA R1 Crémone serrure pour 1/2 porte

RETOUR